Measured Survey

What is a measured survey?

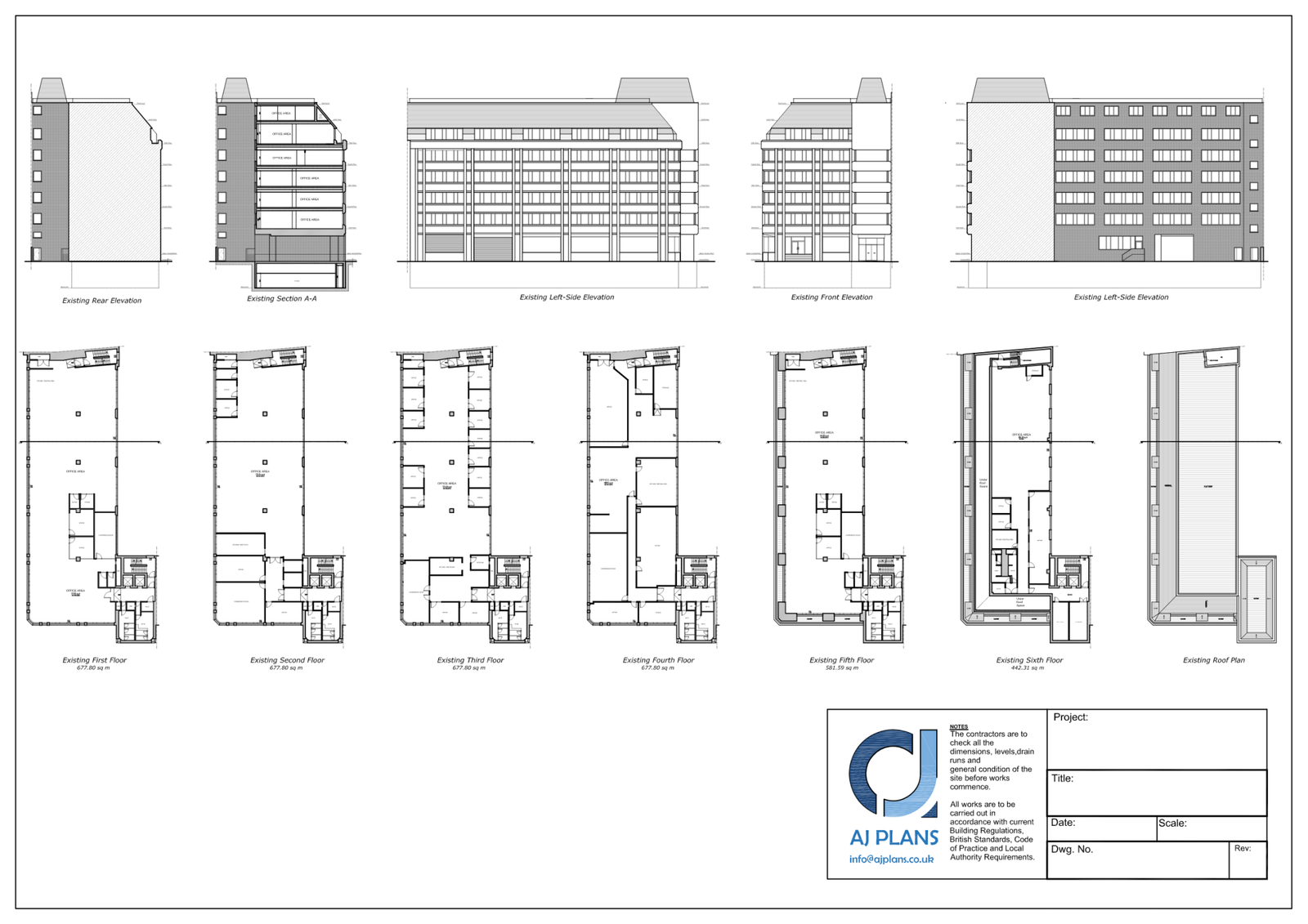
A measured survey is an undertaking that involves the taking of exact measurements of buildings, structures and sites in order to produce very accurate data that can then be used to represent the project on a reduced scale. A measured survey is a comprehensive survey and can relate both to external and internal aspects on a site, right down to detail of individual floor plans in buildings. Surveys are carried out following guidance notes from the Royal Institution of Chartered Surveyors, which form the framework of rules for measured survey of buildings, utilities or land.

How is a measured survey done?

Measured surveys are carried out by our highly trained surveyors using all the up-to-date tools to ensure the highest levels of accuracy. We will make preparations before arriving on site, including making use of all available information about the site including Google Maps and other mapping tools to understand the layout, surroundings, obstacles, and orientation. With modern laser methods of measurement complementing some of the more traditional methods, the process can be completed quickly and accurately. Laser tape measures are fast and purported to be able to measure distances up to 200 meters with an accuracy of 2 millimeters! The degree of accuracy helps avoid unnecessary delays, disputes, disagreements and additional costs which could result from an inaccurate survey.

Ready to get started?

Contact us today. Let’s work together to bring your plans to fruition.